Z297
Зеркальное отображение доступно без доплаты (срок готовности уточняйте у менеджера)
0
102,9 м²
Жилая площадь
102,9 м²
Общая площадь
цена проекта
33 600 руб.

архитектурно-строительный раздел

Доставка бесплатно!

Проект есть в наличии
 

Спросить о кредите

Если Вы ищете кредит для строительства дома по проекту Z297 Просим заполнить приведенный ниже бланк, и наш кредитный консультант свяжется с Вами. Данный с бланка не будут переданы третьим лицам и будут использоваться только для выполнения Вашего запроса.
Имя и фамилия:
эл. почта:
телефон:
содержание:
 
Зеркальное отображение
доступно без доплаты (срок готовности уточняйте у менеджера)

Изменить планировку
Первый этаж 58,5 м²
Проект дома Z297 - план-схема 1
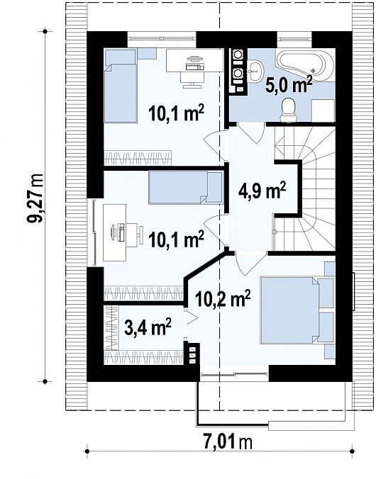
Второй этаж 44,4 м²
Проект дома Z297 - план-схема 2

Z297 Небольшой двухэтажный дом с современными архитектурными элементами, подходящий для узкого участка.

 
Общая площадь 102,9 м²
Площадь застройки 100,1 м²
Кубатура 462 m³
Высота 8,42 m
Угол наклона кровли 30°
Площадь крыши 102,1 m²
Рекомендованные минимальные размеры участка шир. 15,01m × длина 22,58m
Цена проекта 33 600 руб.
 
 

Материалы

Стены газобетон, керамические блоки
Перекрытие монолитное перекрытие
Кровля

Рекомендованные минимальные размеры участка

Проект дома Z297 - размеры участка
 

Фасады

 

Z297

Проект Z297 — это небольшой двухэтажный дом с современными архитектурными элементами, подходящий для узкого участка. Лаконичная форма дома с двухскатной крышей и стильным оформлением входа придает объекту современный вид. Дом имеет небольшую ширину фасада, что позволяет использовать эту разработку на участках практически любой формы.

На относительно небольшой полезной площади (93  м2) создана удобная и функциональная планировка. На первом этаже спроектирована дневная зона, в которую вошли гостиная с местом для столовой и соединённая с ними открытая кухня. К дневной зоне примыкает  котельная, из которой есть отдельный выход в сад. У котельной и гостиной имеется общий дымоход, что представляет функциональное и экономичное решение. Справа от прихожей спланирована ванная. Ночная зона находится на втором этаже. Здесь предусмотрены три спальни (в самой большой есть собственная гардеробная). Ещё один гардероб устроен в холле, ванная комната общая.

Проект Z297 рассчитан на любителей современных архитектурных форм. В этом доме чувствуется индивидуальность, а кроме того, в нём продумана каждая деталь для удобной жизни.


 

Похожие проекты

 
 
 
Мы делаем все возможное для оказания услуг наивысшего уровня. Если Вы заметили ошибку в функционировании сервиса или неточности в опубликованных материалах (несмотря на то, что это не является основанием для претензий к z500) обязательно сообщите свои замечания или пожелания поскольку мы постоянно совершенствуем продукты, сервис и услуги.
Избранное ( 0 ) Сравнение ( 0 )